-
547 m2
Sup.
Descripción de la Propiedad
Terreno con mejoras en Playa Serena La Paloma
Se vende lote de 547 m² en Playa Serena, La Paloma. El terreno cuenta con 16 metros de frente, laterales de 30 y 36 metros, y fondo de 19 metros.
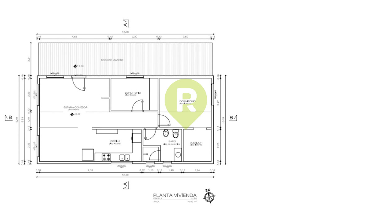
La propiedad incluye dos contenedores ya instalados sobre pilares de hormigón, y dispone de un permiso municipal aprobado para la construcción de 76,5 m².
El proyecto contempla un amplio living comedor integrado a la cocina, dos dormitorios (uno con vestidor), un baño completo y un deck exterior. Esto brinda la posibilidad de continuar la obra sobre una base sólida ya aprobada, optimizando tiempo y costos de construcción.
Una opción ideal para quienes buscan invertir en Playa Serena, a pasos del mar y en una zona en crecimiento.
Ordenanza de Construcción
ZONA A 2-6
a) Ocupación máxima del predio: 30%
b) Retiros:
Frontal: 5m.
Bilateral: 3m.
Fondo: lado mínimo del patio principal
c) Alturas:
La altura máxima admitida será de 7m.
d) Salientes:
La saliente máxima sobre el retiro frontal admitida es de
1,20m. en toda la extensión del volumen edificado en plantas
altas.
La altura mínima de las salientes sobre el nivel del punto
mas alto del cordón de la vereda podrá ser de 2,50m
e) Acondicionamiento de retiros:
El retiro frontal deberá estar enjardinado en un 80% de su área como mínimo
(Decreto 62000 de fecha 11 de diciembre de 2000.)
Caracteristicas
- Zona: La Serena
- Superficie 547m2
Otras Caracteristicas
- Frente: 18mts
- Fondo: 35mts







