-
3
Dorms.
-
2
Baños
-
420 m2
Sup.
Descripción de la Propiedad
Venta de Casa desarrollada en una sola planta, a 300 mts del Mar en Punta del este.-
Excelente propiedad de construcción tradicional, desarrollada en una sola planta, ubicada en un entorno tranquilo y residencial, a tan solo 300 metros del mar.
Una opción ideal para vivienda permanente o inversión con rentabilidad asegurada.
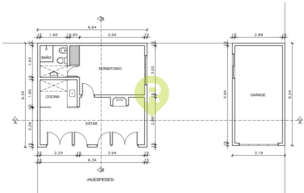
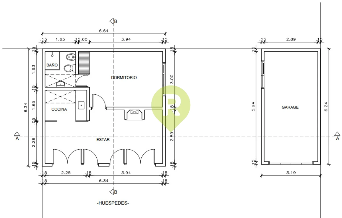
Casa principal:
-Living-comedor con estufa a leña de alto rendimiento con distribución de calor por todos los ambientes
-Cocina definida
-3 dormitorios
-2 baños completos
-Porche-cochera al frente
Garaje cerrado-al fondo
Apartamento de servicio independiente:
-Living-comedor con estufa a leña
-Cocina definida
-Dormitorio
-Baño completo
Espacios exteriores:
-Jardín al frente y al fondo, totalmente cercado
-Buena orientación solar que brinda luminosidad en todos los ambientes
-Parrillero
Propiedad versátil y funcional, en excelente ubicación.
Coordine su visita personal y descubra todo su potencial.-
Caracteristicas
- Zona: Mansa
- Sup. Total: 420m2
- Dormitorios:3
- Baños: 2
- Garage:Si
- Sup. Terreno 420m2
- Sup. Edif. 196m2
- Parrillero Si
Otras Caracteristicas
- Suites: 1
- LivingComedor: Si
- Dep Servicio: Si
- Cocina: Definida
- Distancia al Mar: 300mts
- Plantas: 1
- Estufa Leña: Si
- Techo: 2 Aguas
Fiscal
- Imp.Inmobiliario: $ 41829
- Imp. Primaria: $ 15530




























